close
cách
cách cách cách cách cách

Bản vẽ xây dựng là gì? Hướng dẫn cách đọc bản vẽ xây dựng chi tiết

image

CHIA SẺ BÀI VIẾT

Để xây dựng một công trình hoàn chỉnh, bản vẽ xây dựng là một thành phần quan trọng không thể thiếu. Nhờ vào các kích thước, tỷ lệ và chi tiết trong bản vẽ xây dựng, những người thi công và nhà thầu có thể có cái nhìn tổng quát về công trình chuẩn bị xây dựng. Vậy bản vẽ xây dựng là gì? Vì sao cần phải có bản vẽ trong xây dựng? Cùng tìm hiểu các thông tin về bản vẽ xây dựng qua bài viết bên dưới nhé!

1. Bản vẽ xây dựng là gì? Có mấy loại bản vẽ xây dựng?

1.1. Bản vẽ xây dựng là gì?

Bản vẽ xây dựng còn có tên khác là bản vẽ thiết kế (bản vẽ thiết kế kỹ thuật thi công hay bản vẽ thiết kế kỹ thuật) là khái niệm dùng để chỉ những bản vẽ đang và đã phác họa xong về công trình xây dựng. Đây là bản vẽ khái quát những kết cấu, tỷ lệ và kích thước của công trình xây dựng chi tiết, phác họa lại công trình trong thực tế, giúp mọi người có thể hình dung được công trình trước khi thực hiện khởi công.

Bản vẽ xây dựng là gì
Bản vẽ xây dựng là gì

Sau khi hoàn thiện, bản vẽ xây dựng được đưa vào trong hợp đồng cho các công trình xây dựng. Các thông tin nằm trong hợp đồng xây dựng, gồm cả bản vẽ đều có ý nghĩa pháp lý, là phần thỏa thuận giữa nhà thầu xây dựng và chủ lao động. Bản vẽ thể hiện các thông tin về công trình như chủng loại vật liệu, kích thước, hình dạng, kỹ thuật, tính năng,...

1.2. Bản vẽ xây dựng có mấy loại?

1.2.1. Bản vẽ xin phép xây dựng

Bản vẽ xin phép xây dựng là giấy tờ quan trọng và cần thiết, giúp cho quá trình xin cấp phép giấy phép xây dựng dễ dàng hơn. Bản vẽ này thể hiện các thông tin về công trình xây dựng như vị trí xây dựng và những thông tin khác như kết cấu, diện tích, số tầng, chiều cao… Dựa vào bản vẽ này, Ủy ban nhân dân xã, phường sẽ cấp giấy phép xây dựng cho công trình đó nếu đạt đủ điều kiện.

1.2.2. Bản vẽ thiết kế xây dựng

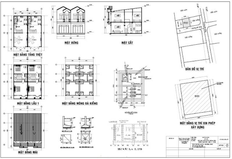
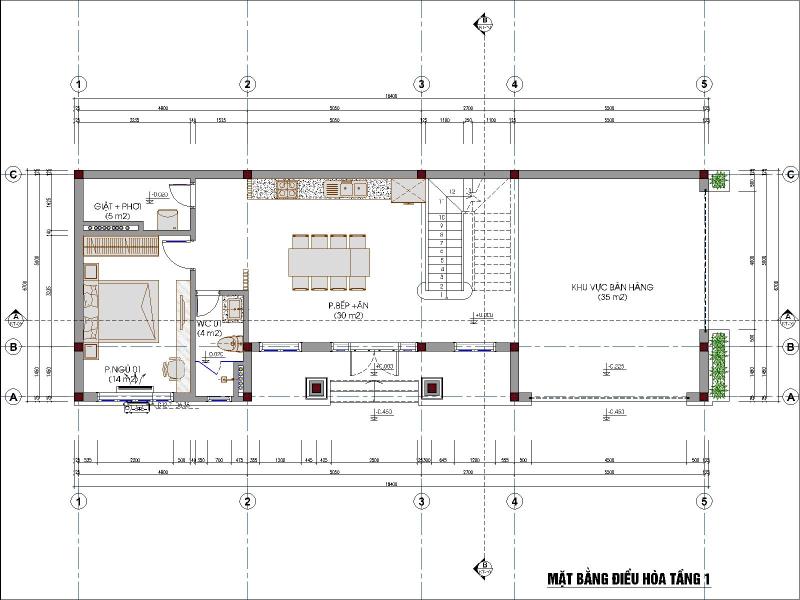
Bản vẽ thiết kế xây dựng sẽ có các thông tin chi tiết hơn về công trình xây dựng như các mặt cắt, mặt bằng, mặt đứng, bản đồ vị trí, khung tên…

- Mặt bằng: Gồm có mặt bằng sơ bộ và mặt bằng tổng thể, mặt bằng tổng thể bao gồm diện tích tất cả các công trình cần xây dựng nằm trên mặt đất; còn mặt bằng sơ bộ là thiết kế của mái nhà và các tầng như tầng lửng, tầng áp mái, tầng trệt.

Bản vẽ thiết kế xây dựng
Bản vẽ thiết kế xây dựng

- Mặt cắt: Phần cắt ngang của các công trình, gồm cả phần hầm tự hoại và phần móng công trình xây dựng.

- Mặt đứng: Mặt đứng trong bản vẽ là mặt tiền của công trình gồm mái nhà, hình dạng, kích thước tại thực tế.

- Khung tên: Phần khung tên là phần có chứa tên công ty xây dựng, dùng khi xin phép đóng dấu cấp duyệt xây dựng.

- Bản đồ họa vị trí: Bản đồ họa vị trí thể hiện rõ ràng vị trí, tọa độ của khu đất chuẩn bị xây dựng công trình, gồm cả những khu đất liền kề xung quanh.

2. Vì sao bản vẽ xây dựng lại quan trọng?

Sau khi đã hiểu rõ bản vẽ xây dựng là gì và các loại bản vẽ xây dựng, chúng ta cùng tìm hiểu lý do bản vẽ xây dựng lại quan trọng và cần thiết nhé!

2.1. Tiết kiệm chi phí hơn

Chi phí là phần được nhiều người quan tâm nhất khi thực hiện một công trình xây dựng nào đó. Chất lượng của công trình xây dựng cũng do chi phí ảnh hưởng một phần. Khi đã xác định được chi phí, chủ đầu tư hay chủ nhà có thể xác định được tình hình tài chính của bản thân có phù hợp với phong cách thiết kế này hay không.

Tiết kiệm chi phí hơn nhờ bản vẽ xây dựng
Tiết kiệm chi phí hơn nhờ bản vẽ xây dựng

Do đó, bản vẽ xây dựng giúp cho việc ước lượng chi phí trở nên dễ dàng hơn, chủ đầu tư hay chủ nhà có thể căn cứ vào bản vẽ để tính toán những chi phí cần cho việc xây dựng nội thất hay công trình xây dựng. Nếu chẳng may sau này có phát sinh thêm, số chi phí phát sinh hoàn toàn có thể kiểm soát được. Nếu công trình xây dựng không có bản vẽ, chủ đầu tư, chủ nhà sẽ trở nên bị động, khó để dự trù chi phí cần thiết.

2.2. Đảm bảo tính thẩm mỹ

Bên cạnh chất lượng thì công trình xây dựng cần phải có yếu tố thẩm mỹ và bản vẽ chính là phương tiện để chủ nhà, chủ đầu tư hình dung ra kết cấu, thiết kế của công trình sau khi hoàn thành. Thông qua bản vẽ, trước khi xây dựng công trình, chủ đầu tư có thể biết được công trình khi hoàn thành sẽ trông ra sao, kết cấu và tính thẩm mỹ của công trình có đảm bảo hay không, cũng như có tiện lợi trong di chuyển, sinh hoạt hay không.

Bên cạnh đó, chủ đầu tư hoàn toàn có thể sửa chữa những chi tiết trong bản vẽ nếu cảm thấy chưa hài lòng, giúp công trình xây dựng hoàn hảo và đúng với ý muốn nhất.

2.3. Xác định được khối lượng vật tư và cung cấp hình ảnh xây dựng

Bản vẽ xây dựng giúp chủ đầu tư, chủ nhà ước lượng được những khối lượng vật tư cần sử dụng cho công trình, từ đó có thể tính toán những đồ nội thất và trang thiết bị cần thiết cho công trình. Thông qua đó, kế hoạch xây dựng công trình được chuẩn bị kỹ lưỡng, giúp các chi phí có thể tính toán và chuẩn bị đầy đủ.

Xác định được khối lượng vật tư cần thiết cho công trình
Xác định được khối lượng vật tư cần thiết cho công trình

Ngoài ra, bản vẽ xây dựng giúp cho công trình có thể được xây dựng một cách hoàn hảo, đúng theo ý muốn chủ đầu tư, chỉ cần chọn những người thợ xây chăm chỉ, tỉ mỉ, có thể biết cách đọc bản vẽ thiết kế, thống nhất với những thông tin đưa ra từ trước, xây dựng theo đúng bản vẽ thiết kế, giúp công trình hoàn chỉnh nhất.

3. Đọc bản vẽ xây dựng thế nào?

Trong các công trình xây dựng nhà ở, bản vẽ xây dựng ngày càng trở nên quen thuộc hơn. Thế nhưng không phải người nào cũng có thể đọc được bản vẽ xây dựng nếu không hiểu về chúng. Dưới đây là cách đọc bản vẽ xây dựng cực kỳ chi tiết cho bạn.

3.1. Đọc bản vẽ phần kiến trúc

Khi đọc bản vẽ kiến trúc, cần đọc bản vẽ chính trước, sau đó xác định vị trí và bố cục của công trình bằng cách đọc bản vẽ bề mặt tổng thể. Để hình dung ra công trình, cần đọc bản vẽ phối cảnh bên ngoài và xem kỹ kích thước, vị trí, bố cục, diện tích các không gian của ngôi nhà. Cuối cùng, để xem chiều cao của công trình thì cần đọc bản vẽ mặt cắt và bản vẽ mặt đứng.

Đọc bản vẽ phần kiến trúc
Đọc bản vẽ phần kiến trúc

Tiếp theo, bạn đọc chi tiết bản vẽ phần kiến trúc sau khi đã hình dung về vị trí không gian và toàn cảnh công trình xây dựng. Bạn cần đọc bản vẽ theo thứ tự lần lượt như: Bản vẽ chi tiết cửa; bản vẽ cầu thang, bậc tam cấp; bản vẽ phòng vệ sinh chi tiết; bản vẽ hạng mục kiến trúc trong công trình chi tiết.

Sau khi bạn đọc xong bản vẽ kiến trúc, bạn đọc tiếp chi tiết sơ bộ, cấu trúc vị trí của các phòng, công năng và khu vực sử dụng, Tiếp đó đọc bản vẽ kết cấu công trình xây dựng lần lượt theo chi tiết sau: Bản vẽ thép móng; bản vẽ thép cột và cột; bản vẽ dầm sàn; bản vẽ bố trí thép sàn, dầm; bản vẽ các kết cấu chi tiết như lanh tô, dầm cầu thang, mái chéo, mi cửa…

3.2. Hướng dẫn đọc bản vẽ điện nước

Để có thể đọc chi tiết bản vẽ các hệ thống nước, điện, thông gió, điều hòa khá là khó, đòi hỏi bạn cần tìm hiểu kỹ. Bạn thực hiện các bước đọc bản vẽ điện nước như sau:

- Hệ thống điện từ tivi, internet: Chiều cao của các ổ cắm điện, vị trí công tắc điện; vị trí aptomat thường và aptomat chống giật được sử dụng; loại dây phù hợp với từng thiết bị; vị trí tủ điện; vị trí hạt mạng (internet) và vị trí hạt tivi.

Hướng dẫn đọc bản vẽ điện nước
Hướng dẫn đọc bản vẽ điện nước

- Hệ thống cấp thoát nước: bạn đọc kỹ vị trí của các thiết bị trong nhà tắm, nhà bếp như vòi hoa sen, chậu; hệ thống cấp thoát nước; chống thấm của ngôi nhà; hệ thống ống cấp và đường kính là bao nhiêu.

- Các bản vẽ khác.

Hy vọng qua bài viết này, bạn đã hiểu rõ bản vẽ xây dựng là gì và những thông tin về bản vẽ này. Trước khi tiến hành xây dựng một công trình nào đó, bản vẽ xây dựng đóng vai trò đặc biệt quan trọng, giúp bạn có thể hình dung ra tổng thể kết cấu của công trình, các chi tiết trong công trình, giúp tiết kiệm chi phí và tính toán những nội thất, vật liệu cần thiết. Khi đọc bản vẽ, bạn nên đọc theo thứ tự kể trên và tìm hiểu về các ký hiệu trong bản vẽ xây dựng để đọc bản vẽ đúng nhất.

Thiết kế kỹ thuật là gì?

Trong các dự án xây dựng, thiết kế kỹ thuật là bước tiền đề cho các dự án và đặc biệt quan trọng. Vậy thiết kế kỹ thuật là gì? Truy cập bài viết bên dưới để hiểu rõ thông tin về thiết kế kỹ thuật nhé!

Thiết kế kỹ thuật là gì?

BÀI VIẾT LIÊN QUAN
cửa hàng nhượng quyền là gì
Cửa hàng nhượng quyền là gì và cách xây dựng cửa hàng nhượng quyền?
Bạn muốn mở rộng mô hình kinh doanh của mình bằng cửa hàng nhượng quyền? Bạn không biết cửa hàng nhượng quyền là gì? Bạn không biết xây dựng cửa hàng nhượng quyền như thế nào? Cùng vieclam123.vn tìm hiểu sau đây nhé!

Brand health là gì
Brand health là gì? Cách thức đo lường và cải thiện Brand health.
Brand health (sức khỏe thương hiệu) là một trong những yếu tố quan trọng nhất đánh giá sự phát triển của thương hiệu doanh nghiệp. Vậy Brand health là gì? Đo lường như thế nào?, chúng ta cùng vieclam123.vn tìm hiểu sau đây nhé!

quản lý là làm gì
Quản lý là làm gì? Vai trò quan trọng của quản lý trong tổ chức
Quản lý là làm gì? Quản lý là một bộ phận phận quan trọng trong bất kỳ tổ chức nào, với vai trò kiểm soát hoạt động và định hướng kế hoạch phát triển.

Ngành điện điện tử làm gì
Ngành điện điện tử làm gì? Lý do bạn nên học ngành điện điện tử?
Ngành điện điện tử làm gì? Ngành điện điện tử là ngành học vô cùng hữu ích và áp dụng thực tế rất nhiều. Chương trình học vô cùng bài bản và chuyên sâu.